ESPACE REGION / Marseille <
 
   
Domaine
Lieu
Projet
MOU
Date
Équipe

Mission
Budget
Surface
Résultat
 

Equipement
Marseille (13)
Aménagement de l'espace Région PACA
Région PACA
Concours en 2007
bauA, Atelier Mossé-Gimmig (architectes),
SP2I (BET TCE), Restho conseil (cuisine), DodesKaden (scénographe), Men (audiovisuel)
Complète loi MOP, SSI, OPC, SYN, Scénographie
4 000 000 €HT 
1696 m² SU
Projet non retenu

 
[...ce lieu doit contenir l’ensemble du territoire PACA, l’idée est de créer un territoire imaginaire, prenant la forme d’une "Nappe" géographique comme coeur de construction de l’espace scénographique. La "Nappe", pellicule territoriale, se déploie en une topographie métaphorique illustrant la Région....]

 

Atelier mosségimmig - Espace Région, Marseille
Perspective intérieure
 
Atelier mosségimmig - Espace Région, Marseille
Perspective intérieure
 
Atelier mosségimmig - Espace Région, Marseille
Coupe

 

Atelier mosségimmig - Espace Région, Marseille Atelier mosségimmig - Espace Région, Marseille Atelier mosségimmig - Espace Région, Marseille
 
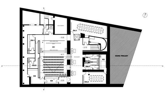
Atelier mosségimmig - Espace Région, Marseille
Plan du sous-sol
 
Atelier mosségimmig - Espace Région, Marseille
Plan du RdC
 
Atelier mosségimmig - Espace Région, Marseille
Façade sur rue
 
copyright © David Mossé & Frédéric Gimmig
<